Ensamble

Type

Interpersonal

Year

2025

Place

Tulum, Quintana Roo

About “Ensamble”

Ensamble is a multifamily residential architectural project located in Tulum, Quintana Roo, designed by RA! Arquitectos and developed by NAMUS.
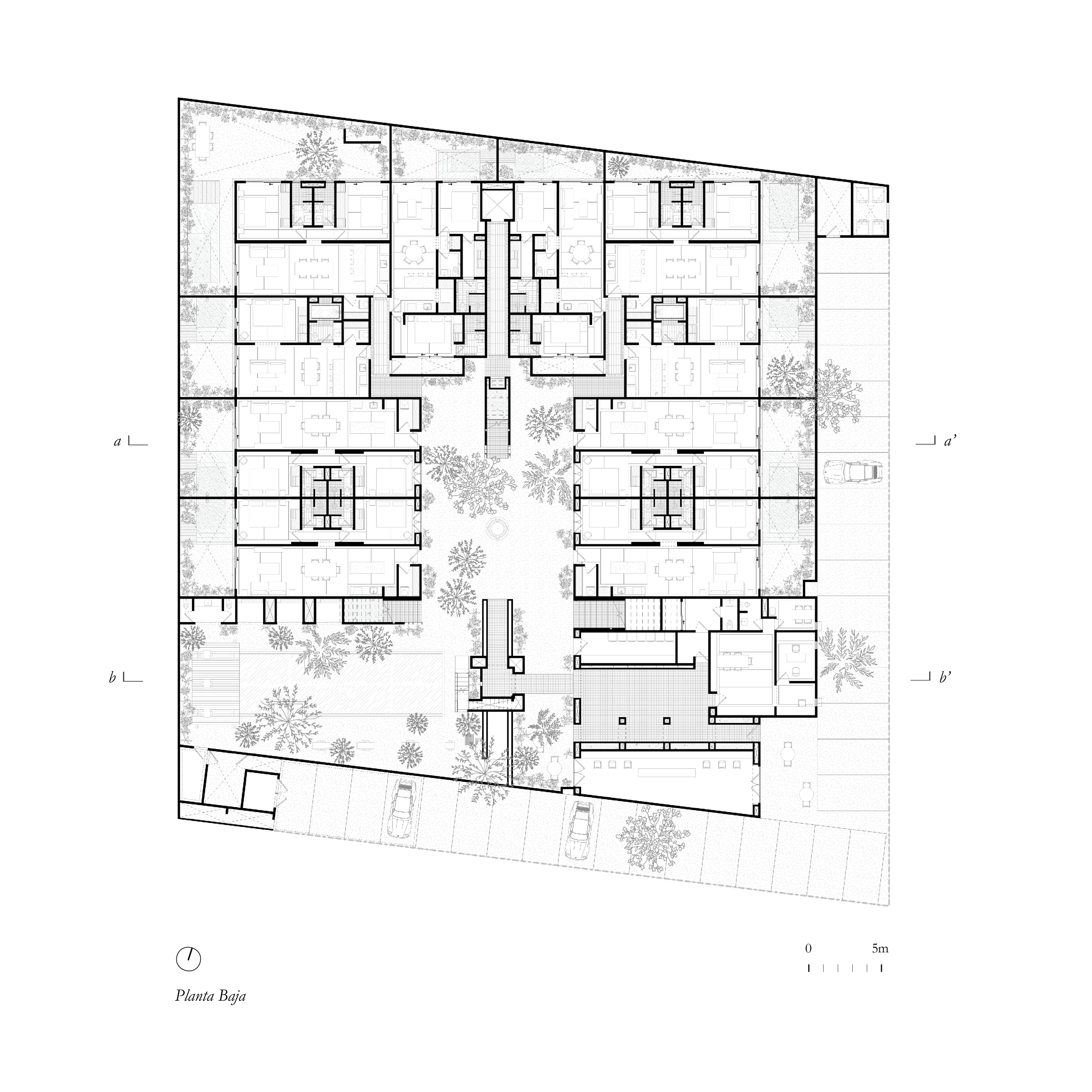
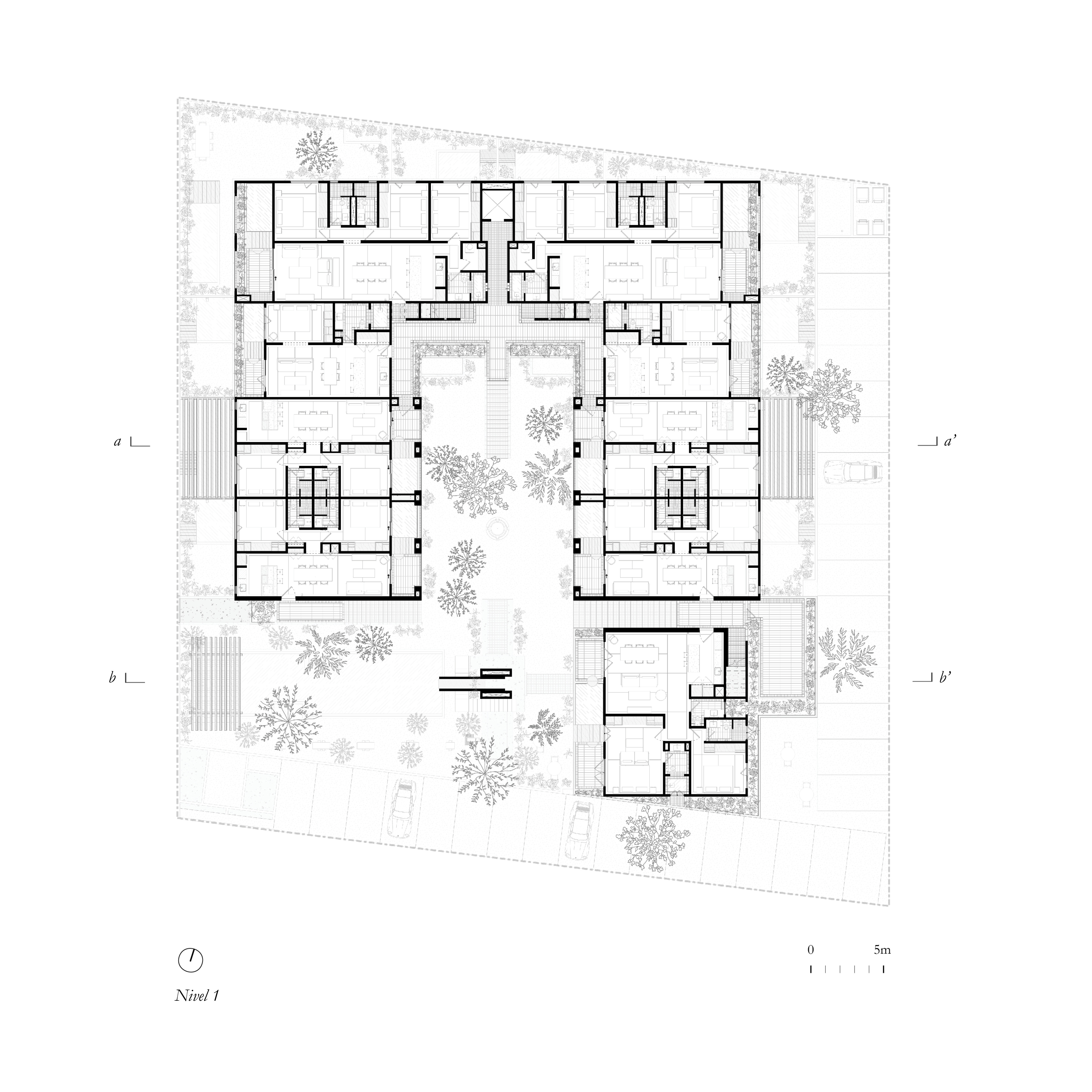
The project articulates a geometric and material language defined by the relationship between a base and an upper block. The base, with its rough texture and a sequence of arches, establishes a rhythm that anchors the building to the ground and engages in dialogue with the local geology. Above it, the upper block rises with a more orthogonal geometry: rectangular frames in the openings and a smooth white stucco finish that reflects light and conveys lightness. This combination of textures and tones responds to the immediate context, seeking to integrate with the landscape rather than compete with it.

The floor plan follows a clear axis of symmetry from which circulation and access are organized. Along this axis, the visitor passes through a sequence of arches leading to the lobby, conceived as a distributive space and the gravitational center of the ensemble. From there, a central stereotomic structure visually frames the pool and guides the route toward the heart of the building.

Rather than a compact volume, the project is conceived as an articulated ensemble, evoking the idea of a small city. The volumetry asserts its presence with a stepped composition that fragments the mass and reduces its perceived scale. Two main blocks are oriented along the east–west axis, connected by symmetrical staircases that reinforce the clarity of the circulation system.

The landscape, both preexisting and introduced, builds a botanical narrative that strengthens the site’s identity. Native and Mediterranean species interact with the architecture, providing freshness, shade, and privacy to the spaces.

The program is completed by a tower that acts as a vertical landmark and visual filter, and a swimming pool that, beyond its recreational function, integrates the surrounding vegetation. Around it, niches, terraces, and a palapa expand the use of the space, shaping an architecture that not only inhabits the landscape but also interprets and transforms it.


Sobre “Ensamble”

Ensamble es un proyecto arquitectónico de vivienda multifamiliar, ubicado en Tulum, Quintana Roo, diseñado por RA! Arquitectos y desarrollado por NAMUS.
El proyecto articula un lenguaje geométrico y material definido por la relación entre un basamento y un bloque superior. El basamento, de textura rugosa y compuesto por una secuencia de arcos, establece un ritmo que arraiga el edificio al suelo y dialoga con la geología local. Sobre él, el bloque superior se eleva con una geometría más ortogonal: marcos rectangulares en los vanos y un acabado fino en estuco blanco que refleja la luz y aporta ligereza. Esta combinación de texturas y tonalidades responde al contexto inmediato, buscando integrarse con el paisaje sin competir con él.

La composición en planta responde a un eje de simetría claro, desde el cual se organiza la circulación y los accesos. A través de este eje, el visitante atraviesa una secuencia de arcos hasta llegar al vestíbulo, concebido como espacio distribuidor y centro de gravedad del conjunto. Desde allí, una estructura central de carácter estereotómico enmarca visualmente la alberca y orienta el recorrido hacia el corazón del edificio.

Más que un volumen compacto, el proyecto se configura como un conjunto articulado, cercano a la idea de una pequeña ciudad. La volumetría se inserta en el espacio con decisión, sobreponiéndose al terreno y afirmando su presencia a través de una secuencia escalonada que fragmenta la masa y reduce su escala perceptiva. Dos bloques principales se orientan sobre los ejes este y oeste, conectados por escaleras simétricas que refuerzan la claridad del sistema circulatorio.

La vegetación, tanto preexistente como añadida, construye una narrativa botánica que refuerza la identidad del lugar. Especies nativas y mediterráneas dialogan con la arquitectura y aportan frescura, sombra y privacidad a los espacios.

El programa se complementa con una torre que actúa como hito vertical y filtro visual, y con una alberca que, además de su uso recreativo, integra la vegetación existente. A su alrededor, nichos, terrazas y una palapa amplían el uso del espacio y completan una arquitectura que no solo habita el paisaje, sino que lo interpreta y lo transforma.