Laiva Plaza Hotel

Type

Societal

Year

2026

Place

San José del Cabo, Baja California Sur, México.

About "Laiva Plaza Hotel"

Laiva Plaza is a boutique hotel located in the historic center of San José del Cabo. Designed by RA! and developed by LAIVA, the building is conceived as an urban piece integrated into the pedestrian fabric, capable of contributing public space while offering an intimate lodging experience connected to its immediate surroundings.

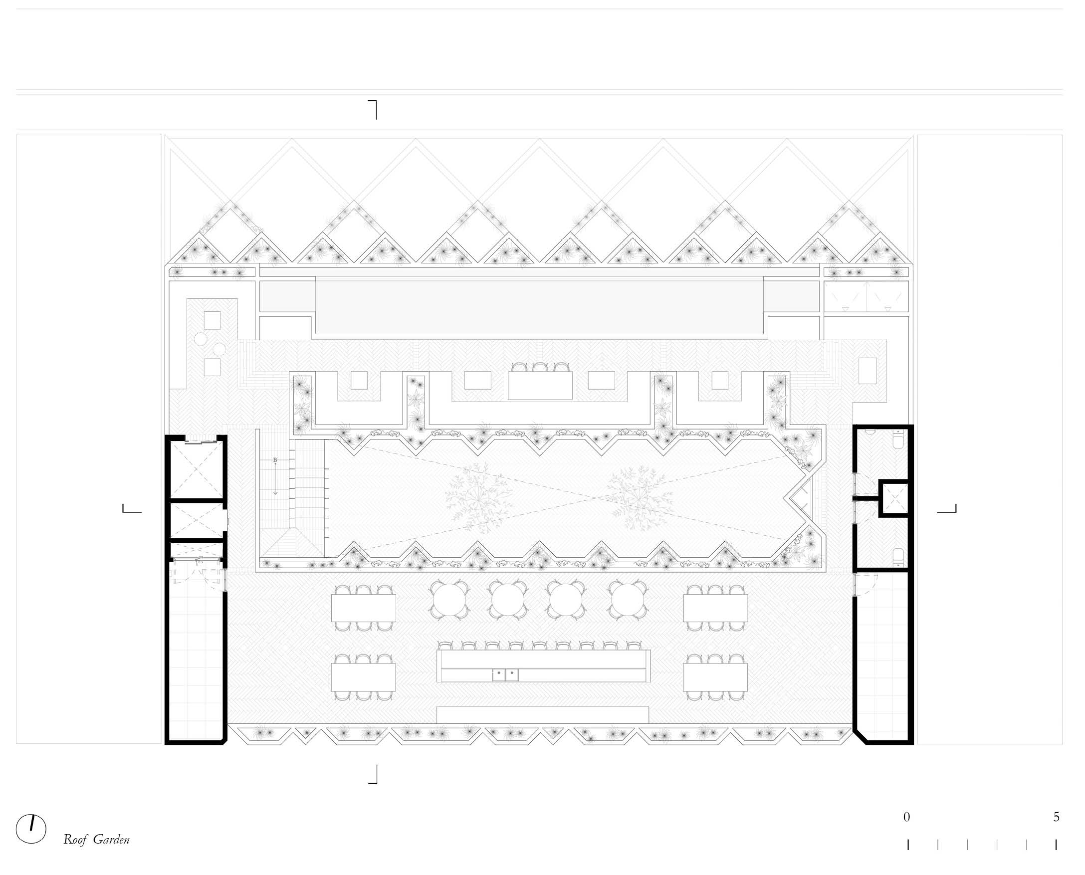
The project is organized with a mixed-use ground floor, two levels of guest rooms, and a Roof Garden with amenities oriented toward views of the urban context. Its placement responds to the public and walkable character of the historic center, as well as to the use of color as an expression of cultural identity. Based on these conditions, the building is set back to create a public atrium that establishes a sequence of shade, ventilation, and transition between the street and the interior.

The access is conceived as an open threshold, where a shaded passage articulates the encounter between public space and interior. The project is not conceived as an isolated object, but rather as an extension of the street, incorporating the urban flow into its spatial organization.

Formally, Laiva is defined by a system of interwoven walls that generate patios and connected terraces. The volume steps back progressively to respect the scale of the historic center, while the rhythmic repetition of its elements recalls the papel picado banners present in the streets of San José. The use of color and handcrafted stucco provides a sensitive and timeless materiality, consolidating an architecture of hospitality rooted in its urban and cultural context.


Sobre "Laiva Plaza Hotel"

Laiva Plaza es un hotel boutique ubicado en el centro histórico de San José del Cabo. Diseñado por RA! e impulsado por la desarrolladora LAIVA, el edificio se concibe como una pieza urbana integrada al tejido peatonal, capaz de aportar espacio público y, al mismo tiempo, ofrecer una experiencia de estancia íntima y vinculada al entorno inmediato.

El proyecto se organiza en una planta baja de usos mixtos, dos niveles de habitaciones y Roof Garden con amenidades orientadas a las vistas del contexto urbano. Su implantación responde a la vocación pública y caminable del centro histórico, así como al uso del color como expresión de identidad cultural. A partir de estas condiciones, el edificio se remete para liberar un atrio público que construye una secuencia de sombra, ventilación y transición entre la calle y el interior.

El acceso se plantea como un umbral abierto, donde un pasaje sombreado articula el encuentro entre espacio público e interior. El proyecto no se concibe como un objeto aislado, sino como una extensión de la calle, incorporando el flujo urbano dentro de su organización espacial.

Formalmente, Laiva se define por un sistema de muros entrelazados que generan patios y terrazas conectadas. El volumen se escalona progresivamente para respetar la escala del centro histórico, mientras que la repetición rítmica de sus elementos nos recuerda a las banderillas de papel picado presentes en las calles de San José. El uso del color y del estuco artesanal aporta una materialidad sensible y atemporal, consolidando una arquitectura de hospitalidad arraigada al contexto urbano y cultural.