La Cañada - Casa Club

Type

Societal

Year

2025

Place

La Paz, Baja California Sur

English

About "La Cañada - Casa Club"

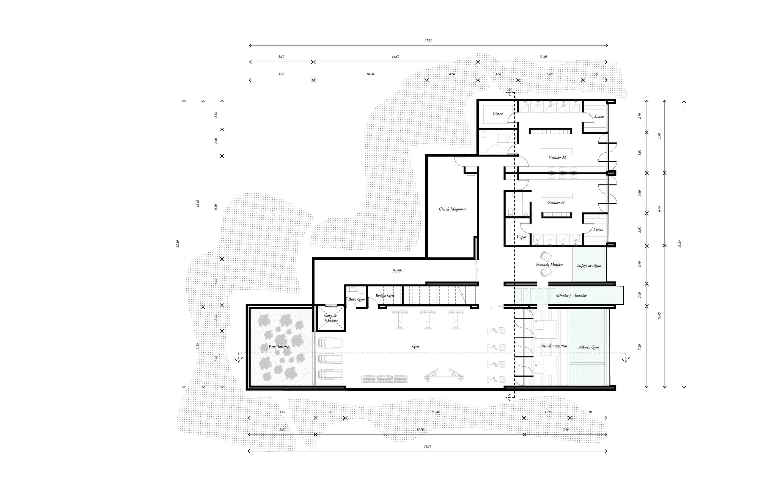
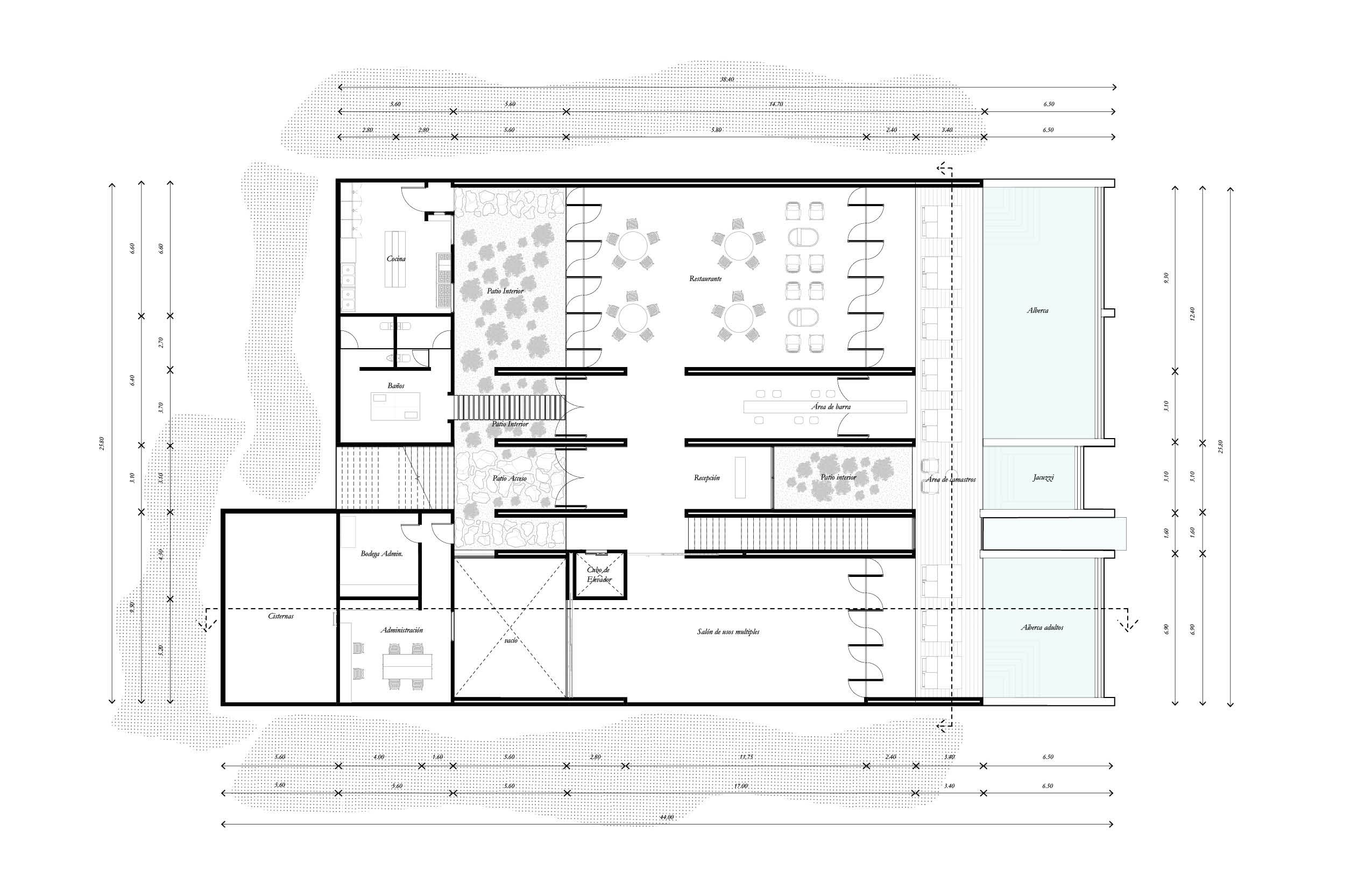
"La Cañada - Casa Club" serves as the communal heart of the residential development in La Paz, Baja California, Mexico. Located at the far end of the site, the building is conceived as a quiet and grounded presence that supports the 27 homes and residential tower, without competing with them. Constructed in pigmented concrete that matches the earthy tones of the terrain, the architecture seeks to blend into its surroundings, reducing its visual impact and establishing a subtle dialogue with the landscape. Its materiality reinforces a sense of permanence and continuity with the site.

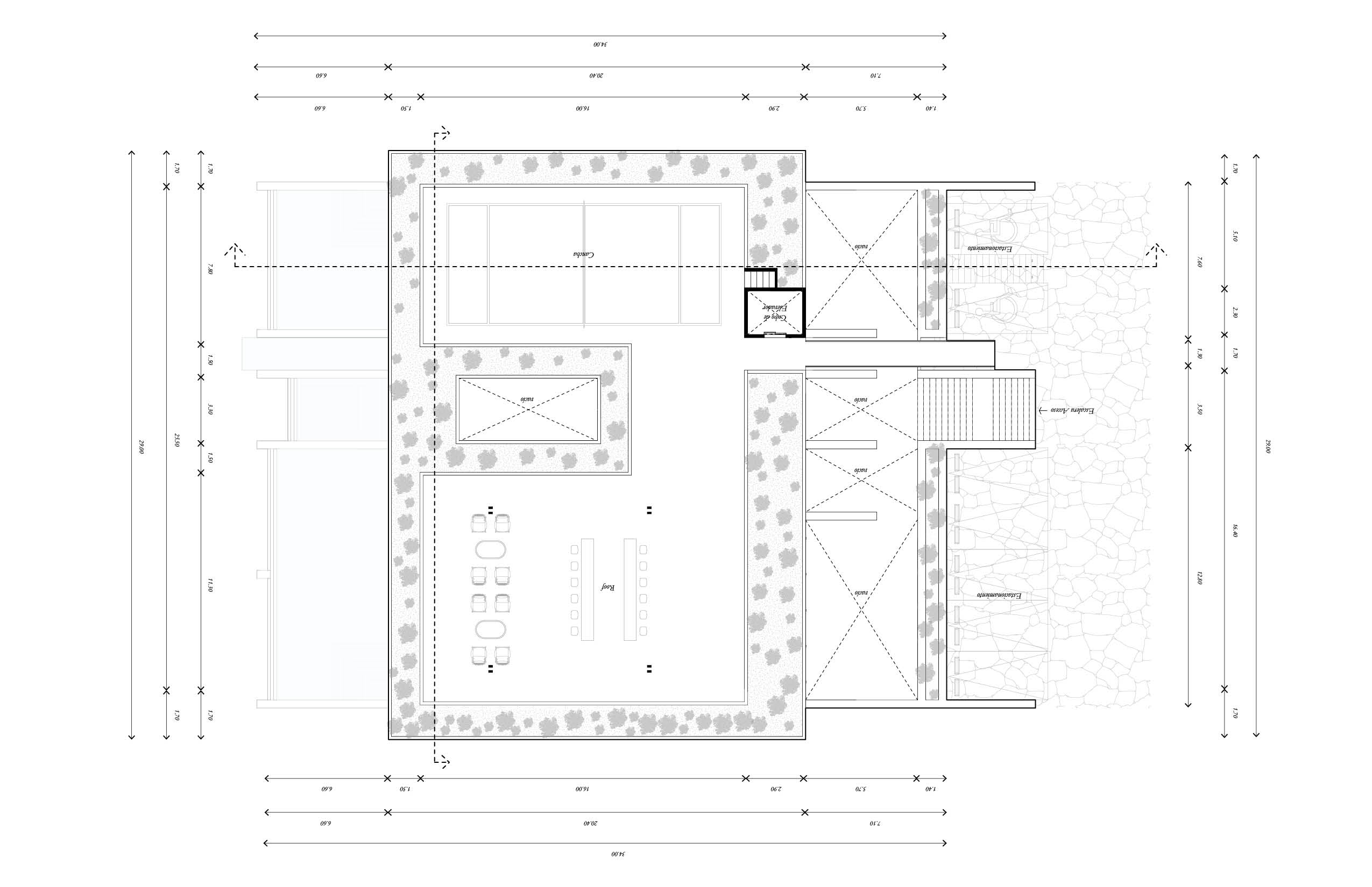
The program includes a restaurant, a multipurpose hall, a gym, and a swimming pool, offering shared spaces for gathering, recreation, and everyday life. Access to the building occurs from the rooftop, reached through a vertical circulation tower that also functions as a lookout point. This elevated arrival sequence frames views of the development and the surrounding horizon. The rooftop itself acts as an observatory and can also be used as a pickleball court, expanding the building’s recreational capacity. Conceived as a fully open structure, the club promotes cross ventilation and natural lighting through a series of patios, allowing interior spaces to remain fluid, shaded, and environmentally responsive.

"La Cañada - Casa Club" is not conceived as an iconic object, but as an extension of the terrain, a collective platform that fosters community life through openness, climate sensitivity, and material integration.


Sobre "La Cañada - Casa Club"

"La Cañada - Casa Club" funciona como el corazón comunitario del desarrollo residencial en La Paz, Baja California, México. Ubicada al fondo del conjunto, la edificación se concibe como una presencia discreta y arraigada al sitio, pensada para dar servicio a las 27 viviendas y a la torre residencial sin competir con ellas. Construida en concreto pigmentado del color de la tierra del lugar, la arquitectura busca mimetizarse con el entorno, disminuyendo su impacto visual y estableciendo un diálogo sutil con el paisaje. Su materialidad refuerza una sensación de permanencia y continuidad con el terreno.

 El programa integra un restaurante, un salón de usos múltiples, gimnasio y alberca, ofreciendo espacios compartidos para el encuentro, la recreación y la vida cotidiana. El acceso principal se realiza por la azotea del edificio, a través de una torre de circulación vertical que, además, funciona como mirador. Esta secuencia de llegada elevada enmarca vistas hacia el desarrollo y el horizonte circundante. La azotea se concibe también como un mirador y puede utilizarse como cancha de pickleball, ampliando las posibilidades recreativas del conjunto. El edificio es completamente abierto, favoreciendo la ventilación cruzada y la iluminación natural mediante patios que permiten que los espacios interiores se mantengan fluidos, sombreados y ambientalmente eficientes.

 "La Cañada - Casa Club" no se plantea como un objeto protagónico, sino como una extensión del terreno: una plataforma colectiva que promueve la vida en comunidad a través de la apertura, la integración material y una respuesta sensible al clima.